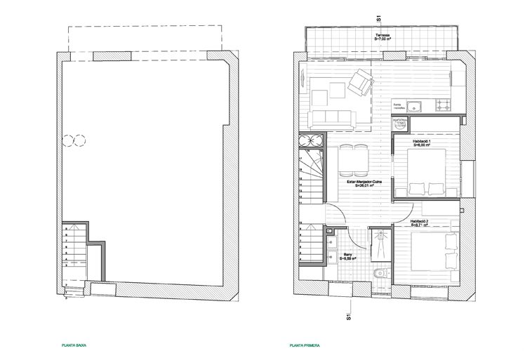
REFORMA HABITATGES, EL PORT DE LA SELVA (2019)
Reforma de dos habitatges en edifici plurifamiliar.
© 2026
Mercè Oriol
E-mail
merce@merceoriol.com