Imatges 1 2 Plànols 1 2 3

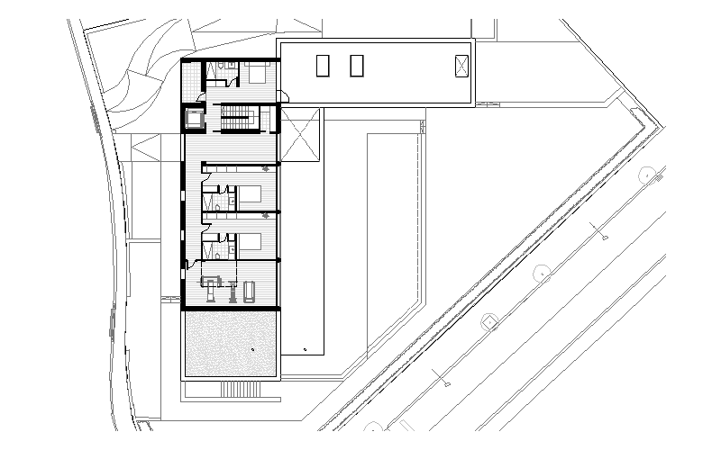
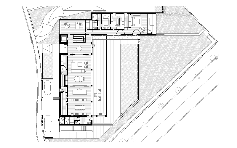
HABITATGE UNIFAMILIAR AÏLLAT AMB PISCINA
En fase de projecte 2025

Construcció d’un habitatge unifamiliar aïllat.