ESCOLA D’HOSTALERIA. FIGUERES (2010)
En col·laboració amb Jaume Torrent, arquitecte, a la fase de projecte (2007)
En col·laboració amb Rafael Soto i Àngel Fibla, arquitectes, a la fase de projecte i direcció d’obra

Es tracta d’un edifici de nova planta per ubicar-hi una escola d’hostaleria i es desenvolupa en tres nivells diferents degut a la topografia del terreny.

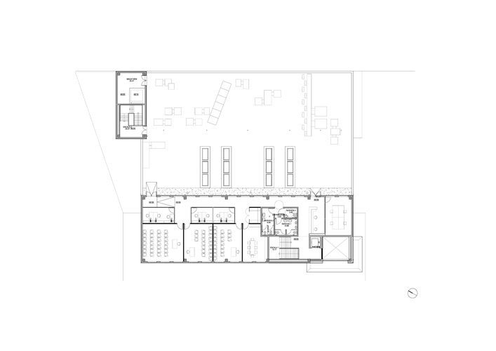
La planta soterrani, formada per una sola crugia, és on es distribueixen les sales més tècniques de l’edifici. S’hi agrupen els serveis i vestidors, l’espai de fleca i pastisseria; i les sales tècniques que són necessàries pel bon funcionament de l’edifici.

La planta baixa, formada per tres crugies, és la planta on transcorren les activitats docents, ordenades al voltant d’una gran sala central. La primera crugia incorpora la cuina pedagògica, amb tots els seus components i serveis, i també la cuina d’aplicació i igualment una aula de demostració, amb grades.

La crugia central, s’organitza al voltant del restaurant d’aplicació, com a espai obert al públic on es porten a la pràctica els treballs efectuats a la cuina d’aplicació i els serveis de Sala. Aquest restaurant rep il·luminació per uns lluernaris de coberta, i permet visualitzar l’aula de demostració, on es poden portar a terme activitats tant docents com obertes a l’exterior.

La crugia que conforma la façana al parc conté els espais de recepció, aulari, sales de professors, aula de cates, serveis generals i unes oficines per a la Cambra de Comerç.

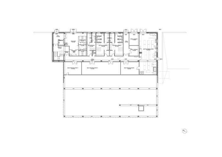
La planta primera, que ocupa únicament la crugia de façana al parc, conté diversos espais que es poden dedicar també a formació, amb un accés independent de l’escola, i permet per tant el seu funcionament amb un cert grau d’autonomia funcional i d’horaris del centre educatiu.

A nivell constructiu, l’edificació es va construir amb elements prefabricats, per tal de fer més fàcil i més econòmic l’execució del nou volum, com també el seu manteniment.