CLÍNICA BOFILL. FIGUERES (2016)
La Clínica Bofill s’ubica a la planta baixa i primera de l’edifici residencial Erato, amb accés des de la porxada del Carrer Sant Llàtzer.
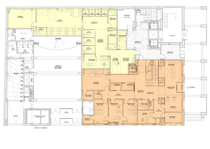
En la planta baixa hi ha dues zones diferenciades amb accessos independents: consultori mèdic i la zona de rehabilitació.
El consultori mèdic té dues plantes. La planta baixa es disposa de la recepció, sala d’espera, sales d’urgències i sales de radiografia i analítiques i la planta primera té un eix vertebrador amb funció d’una gran sala d’espera que distribueix les consultes dels diferents especialistes, amb façana al Carrer Escoles i al pati interior.
Tots els materials emprats són els adequats per edificis sanitaris, tot seguint la imatge corporativa de la Clínica Bofill que té en altres ubicacions.