Ampliació d’una Nau
En fase de projecte 2025.
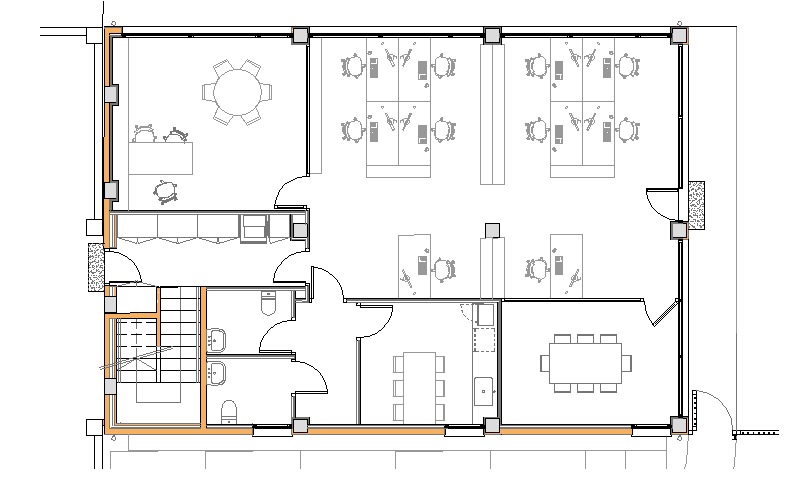
Ampliació d’una nau industrial per a ús d’oficina
© 2026
Mercè Oriol
E-mail
merce@merceoriol.com